• 3#B-3户型 1/10
  • 3#B-1户型 2/10
  • 2#C-2户型 3/10
  • 3#B-2户型 4/10
  • 2#C-3户型 5/10
  • 2#C-3户型 6/10
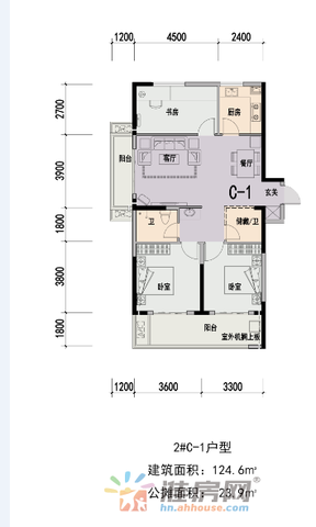
  • 2#C-1户型 7/10
  • 1#A-3户型 8/10
  • 1#A-2户型 9/10
  • 1#A-1户型 10/10
  • 效果图 1/3
  • 效果图 2/3
  • 老龙眼菜市街 3/3
  • 项目周边 1/3
  • 老龙眼水库 2/3
  • 东方医院 3/3
  • 开工典礼 1/1
  • 1/
  • 户型图
  • 效果图
  • 周边环境图
  • 其他图片